【KDDK全屋定制】看看别人家装的轻奢风,真香!
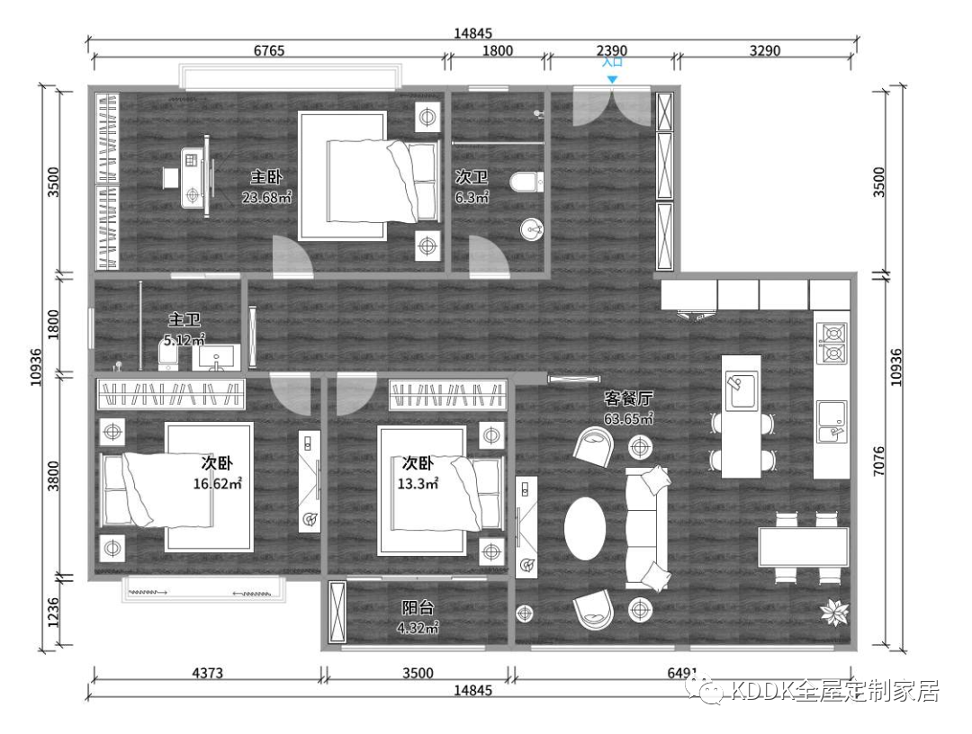
本案例户主做任何事情都精益求精,面对新家的装修,她对细节的要求更是严苛,每一处的设计都是经过长时间的磨合洽谈下完美展现出来的,快一起来看看这个令业主直呼满意的家!


















(图文来源:KDDK全屋定制家居公众号,侵删)
暂无搜索记录
您所在的位置: 首页 > 新闻资讯 > 【KDDK全屋定制】看看别人家装的轻奢风,真香!
本案例户主做任何事情都精益求精,面对新家的装修,她对细节的要求更是严苛,每一处的设计都是经过长时间的磨合洽谈下完美展现出来的,快一起来看看这个令业主直呼满意的家!


















(图文来源:KDDK全屋定制家居公众号,侵删)
所属公司:成都凯蒂瑞成家具有限公司
公司官网:https://shop.jia400.com/29488/
会员级别:普通会员
诚信认证
招商电话:400-662-0888转7579